- Project Information
- Completion Photos
- Visualizations
- Drawings
- Video/Animation
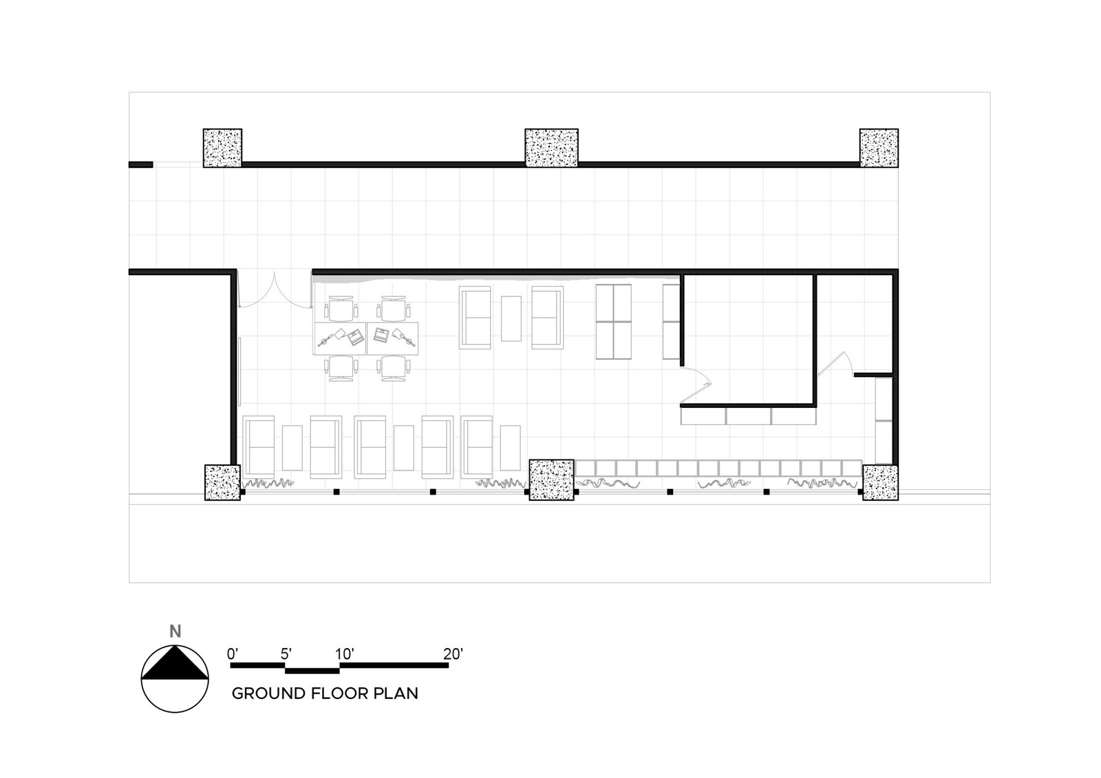
Pani Vaban Office Interior
- Client: ZAS Limited
- Location: Pani Vaban, 72, Green Rd, Panthapath, Dhaka 1215
- Project Type: Commercial
- Scope of Work: Design Consultancy
- Project Status: Proposed
- Project Timeline: 2022
- Project Team: Ar. Shuzaul Islam Ar. Sudipto Das
River Reflections: Office Interior Design
This office interior celebrates the rivers of Bangladesh through a bold and innovative design approach. The ceiling features a map of Bangladesh’s rivers, with the river lines illuminated as striking ceiling lights, symbolizing the lifelines of the country.
A focal wall incorporates Bangladesh’s topography contour lines, creating a unique and visually captivating element that blends art with geography. The design is completed with a minimal and elegant color scheme, ensuring a sophisticated and timeless workspace that reflects the spirit of the nation.
Not Available
Not Available









