- Project Information
- Completion Photos
- Visualizations
- Drawings
- Video/Animation
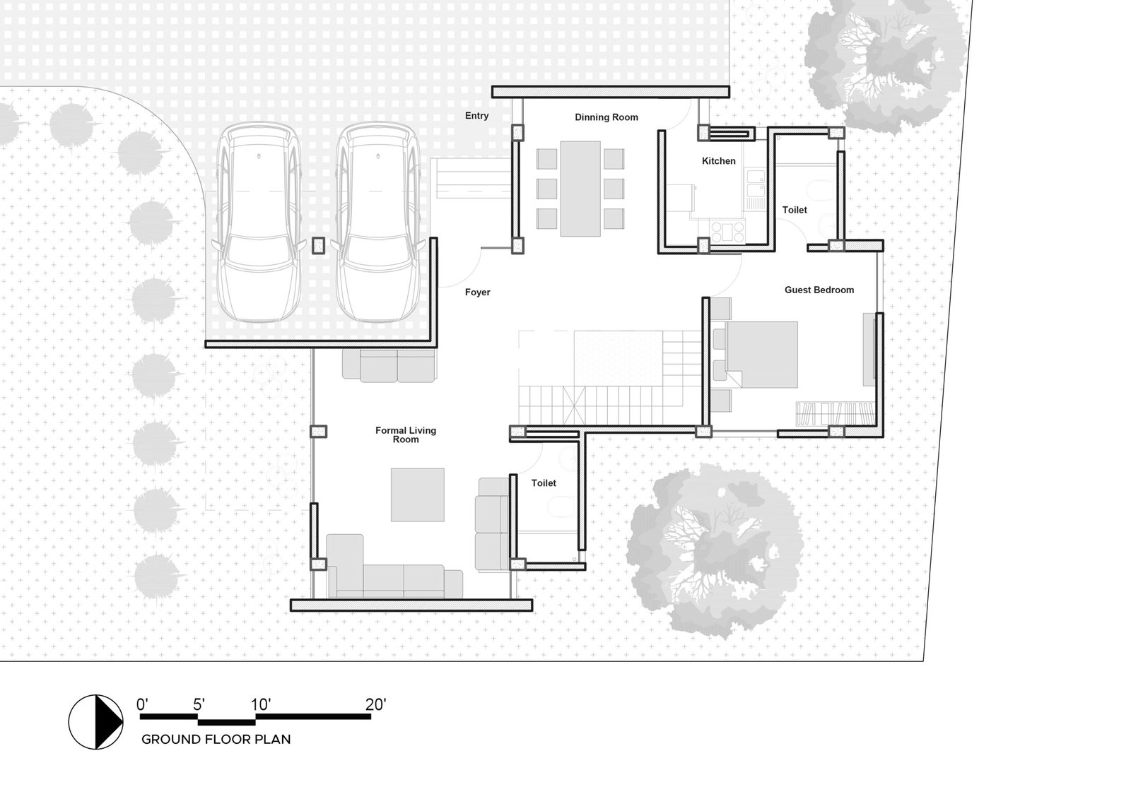
Sarkar Bari | A Serene Scape from Reality
- Client: Sarkar Numayan Khaled
- Location: Sarkar Bari, Bishnupur, Brahmanbaria.
- Project Type: Residential
- Scope of Work: Design Consultancy
- Project Status: Ongoing
- Project Timeline: 2024
- Project Team: Ar. Abrar Ahmed Fidvi
This project is an intimate vacation retreat designed for a family of nine, harmoniously combining exposed brickwork with contemporary design aesthetics. The duplex vacation home offers a seamless blend of rustic warmth and modern elegance, providing a serene escape for six adults and three children.
The design optimizes communal spaces for family bonding while ensuring private areas cater to individual comfort and relaxation. With its focus on functionality, style, and coziness, the home includes thoughtfully designed amenities that enhance the vacation experience. It’s a tranquil haven, offering the perfect balance between sophistication and homely charm.
Not Available
Not Available







